Sopra e sottostruttura & Opere speciali geotecnica
- Percorso Rotatorio Grumo - Percorso Rotatorio Grumo - Settore: Opere di sopra e sottostruttura del genio civile - Categoria: Rotatorie, fermate bus, tracciati infrastrutture aziende, canalizzazioni - Committente: Dipartimento del Territorio del Canton Ticino - Luogo: Gravesano (CH) - Anno: 2017-2018 - Prestazioni eseguite: Progettazione, Controllo locale dei lavori, rotatoria con adattamento strade di accesso, fermate bus, riassetto e rimessa in quota infrastrutture aziende, spostamento collettore fognario CDALED 
- Manutenzione straordinaria via Adamini spostamento riale Tassino - Manutenzione straordinaria via Adamini spostamento riale Tassino - Settore: Opere di sopra e sottostruttura del genio civile - Categoria: Opere stradali, rotatorie, fermate bus, correzione e intubamento di riali - Committente: Città di Lugano - Luogo: Lugano-Loreto (CH) - Anno: 2019-2021 - Prestazioni eseguite: Progettazione e Direzione Lavori, Liquidazioni, spostamento riale Tassino intubato, nuova livelletta stradale, piazza di giro e posteggio, pavimentazioni 
- Manutenzione straordinaria via Adamini canalizzazioni e collettore fognario CDALED - Manutenzione straordinaria via Adamini canalizzazioni e collettore fognario CDALED - Settore: Opere di sopra e sottostruttura del genio civile - Categoria: Canalizzazioni - Committente: Città di Lugano - Luogo: Lugano-Loreto (CH) - Anno: 2019-2021 - Prestazioni eseguite: Progettazione e Direzione Lavori, Liquidazioni, riassetto canalizzazioni e spostamento collettore CDALED 
- Manutenzione straordinaria via Adamini riassetto infrastrutture - Manutenzione straordinaria via Adamini riassetto infrastrutture - Settore: Opere di sopra e sottostruttura del genio civile - Categoria: Tracciati infrastrutture aziende - Committente: Città di Lugano - Luogo: Lugano-Loreto (CH) - Anno: 2019-2021 - Prestazioni eseguite: Progettazione e Direzione Lavori, Liquidazioni, riassetto tracciati aziende di distribuzione servizi 
- Pista ciclabile trincea ferroviaria di Lugano-Besso - Pista ciclabile trincea ferroviaria di Lugano-Besso - Settore: Opere di sopra e sottostruttura del genio civile, opere speciali di geotecnica - Categoria: Piste ciclabili, opere di sostegno e rinforzo stradali - Committente: Città di Lugano e Comune di Massagno - Luogo: Lugano e Massagno (CH) - Anno: 2021-2022 - Prestazioni eseguite: Progetto di massima pista ciclabile, concezione tracciato + interfacce a monte e a valle + pareti verdi, coordinamento indagini geologiche e geofisiche, progettazione pareti ancorate di sostengo, concezione opere di messa in sicurezza provvisorie e permanenti esercizio ferroviario, risanamento muri trincea ferroviaria, canalizzazioni di smaltimento acque, impianto di illuminazione 
- Riqualifica ed estensione parco di Villa Costanza Lugano - Riqualifica ed estensione parco di Villa Costanza Lugano - Settore: Opere di sopra e sottostruttura del genio civile - Categoria: Opere di arredo urbano, parchi gioco - Committente: Città di Lugano - Luogo: Lugano (CH) - Anno: 2021-2022 - Prestazioni eseguite: Progettazione strutturale, Direzione Lavori, Liquidazioni, muri di sostegno e di cinta, pergolati in legno, locali tecnici, piscine, canalizzazioni e condotte impiantistica, camminamenti 
- Messa in sicurezza strada cantonale località Deca e Lantoi a Origlio - Messa in sicurezza strada cantonale località Deca e Lantoi a Origlio - Settore: Opere di sopra e sottostruttura del genio civile - Categoria: Opere stradali, fermate bus - Committente: Dipartimento del Territorio del Canton Ticino - Luogo: Origlio (CH) - Anno: 2015 - Prestazioni eseguite: Progettazione e Controllo locale lavori, allargamento carreggiate stradali, formazione piazza di giro bus e fermate bus 
- Manutenzione straordinaria via Sarera - Manutenzione straordinaria via Sarera - Settore: Opere di sopra e sottostruttura del genio civile - Categoria: Opere stradali, canalizzazioni - Committente: Città di Lugano - Luogo: Breganzona (CH) - Anno: 2013-2014 - Prestazioni eseguite: Progettazione, Direzione Lavori, Liquidazioni, pavimentazione con riassetto della livelletta stradale e marciapiedi, sostituzione canalizzazione acque miste 
- Sistemazione di Via alla Chiesa di Pazzalino a Pregassona - Sistemazione di Via alla Chiesa di Pazzalino a Pregassona - Settore: Opere di sopra e sottostruttura del genio civile - Categoria: Opere stradali, tracciati infrastrutture aziende, canalizzazioni - Committente: Città di Lugano - Luogo: Lugano-Pregassona (CH) - Anno: 2018-2019 - Prestazioni eseguite: Progettazione e Direzione Lavori, Liquidazioni, sostituzione canalizzazione acque miste, sottomurazioni, spostamento infrastrutture aziende, pavimentazioni con riassetto della livelletta stradale e nuovo marciapiede 
- PVP Piano della Viabilità del Polo - PVP Piano della Viabilità del Polo - Settore: Opere di sopra e sottostruttura del genio civile - Categoria: Opere stradali, tracciati infrastrutture aziende, impianti semaforici - Committente: Città di Lugano - Luogo: Lugano (CH) - Anno: 2009-2012 - Prestazioni eseguite: Progettazione, Direzione Lavori, Liquidazioni, adattamenti stradali e riassetto infrastrutture impianti semaforici e infrastrutture aziende di distribuzione servizi 
- Messa in sicurezza incrocio Besso-Coremmo a Lugano - Messa in sicurezza incrocio Besso-Coremmo a Lugano - Settore: Opere di sopra e sottostruttura del genio civile - Categoria: Opere stradali e di arredo urbano - Committente: Città di Lugano - Luogo: Lugano (CH) - Anno: 2020 - Prestazioni eseguite: Progettazione, Direzione Lavori, Liquidazioni, arretramento muri di sostegno, allargamento e formazione nuovi marciapiedi per migliore accesso scuole, sistemazione arredo urbano 
- Percorso Rotatorio Torricella-Taverne - Percorso Rotatorio Torricella-Taverne - Settore: Opere stradali di sopra e sottostruttura del genio civile - Categoria: Rotatorie, fermate bus - Committente: Dipartimento del Territorio del Canton Ticino - Luogo: Torricella-Taverne (CH) - Anno: 2017 - Prestazioni eseguite: Progettazione di massima rotatoria con adattamento strade di accesso, fermate bus 
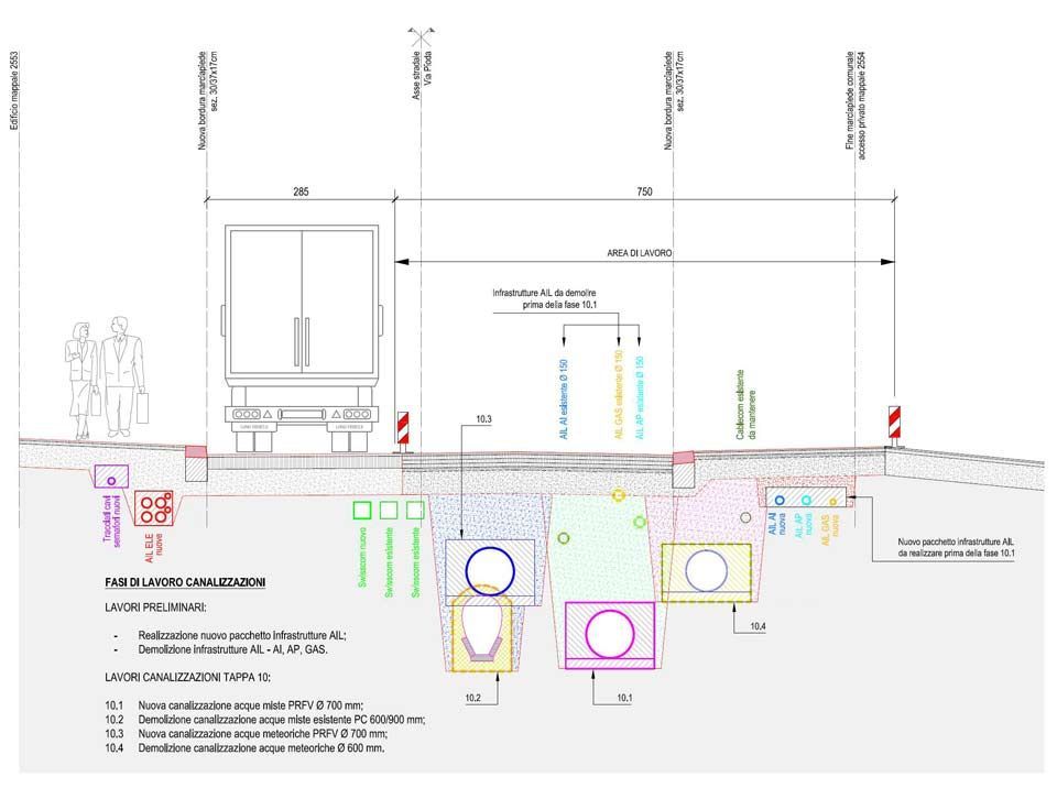
- Via Pioda Lugano - Via Pioda Lugano - Settore: Opere di sopra e sottostruttura del genio civile - Categoria: Opere stradali, tracciati infrastrutture aziende, canalizzazioni - Committente: Città di Lugano - Luogo: Lugano (CH) - Anno: 2011-2012 - Prestazioni eseguite: Progettazione di massima per spostamento asse via Pioda, riassetto infrastrutture aziende di distribuzione servizi e sostituzione canalizzazioni 
- Parete ancorata villa a Montagnola - Parete ancorata villa a Montagnola - Settore: Opere speciali di geotecnica - Categoria: Opere di scavo e di sostegno - Luogo: Montagnola (CH) - Altezza max: 20 m - Lunghezza fronti: 80 m - Anno: 2002 - Ingegnere: Ing. Roberto Artari formalmente a Passera & Pedretti SA - Prestazioni eseguite: Progettazione, Direzione Lavori, parete ancorata con tiranti attivi 
- Interventi di consolidamento strada Bré - Interventi di consolidamento strada Bré - Settore: Opere speciali di geotecnica - Categoria: Opere di rinforzo pendii, opere di rinforzo e sostegno stradali - Committente: Città di Lugano - Luogo: Lugano-Bré (CH) - Anno: 2018-2022 - Prestazioni eseguite: Progettazione e Direzione Lavori, Liquidazioni, contrafforti ancorati, muri di sostegno, chiodature + reti per stabilizzazione pendio, micropali, tiranti passivi 
- Posteggio Riva Bianca a Castagnola - Posteggio Riva Bianca a Castagnola - Settore: Opere speciali di geotecnica - Categoria: Opere di scavo e sostegno, opere di fondazioni profonde - Luogo: Lugano-Castagnola (CH) - Anno: 2018 - Prestazioni eseguite: Progettazione, Direzione Lavori, tiranti provvisori di ancoraggio parete di sostegno terreno, infrastrutture e canalizzazioni, micropali di ancoraggio speroni, micropali di fondazione struttura e muro a lago 
- Consolidamento muro a lago Morcote - Consolidamento muro a lago Morcote - Settore: Opere speciali di geotecnica - Categoria: Opere di rinforzo di rive lago - Luogo: Morcote (CH) - Anno: 2021 - Prestazioni eseguite: Progettazione, Direzione Lavori, Liquidazioni, sottomurazione di rinforzo muro a lago con micropali e tiranti passivi 
- Parete ancorata 2 ville a Morcote - Parete ancorata 2 ville a Morcote - Settore: Opere speciali di geotecnica - Categoria: Opere di scavo e di sostegno - Luogo: Morcote (CH) - Altezza max: 12 m - Lunghezza fronte: 100 m - Anno: 2016 - Prestazioni eseguite: Progettazione, Direzione Lavori, Liquidazioni, parete chiodata 
- Micropali edifici plurifamiliari a Cadro - Micropali edifici plurifamiliari a Cadro - Settore: Opere speciali di geotecnica - Categoria: Opere di fondazione profonde - Luogo: Lugano-Cadro (CH) - Anno: 2015 - Prestazioni eseguite: Progettazione, Controllo locale lavori, micropali di fondazione 
- Opere di scavo e fondazione residenza Poggio d’Oro Canobbio - Opere di scavo e fondazione residenza Poggio d’Oro Canobbio - Settore: Opere speciali di geotecnica - Categoria: Opere di scavo e di sostegno, fondazioni profonde - Luogo: Canobbio (CH) - Anno: 2013 - Prestazioni eseguite: Progettazione, Direzione Lavori, Liquidazioni, muri di sostegno con massi ciclopici, zavorramenti e drenaggi contro sifonamento, berlinese sostegno strada puntellata contro edificio, micropali di fondazione 
- Parete ancorata casa a Cadro - Parete ancorata casa a Cadro - Settore: Opere speciali di geotecnica - Categoria: Opere di scavo e di sostegno - Luogo: Cadro (CH) - Altezza max: 12 m - Lunghezza fronte: 30 m - Anno: 2008 - Prestazioni eseguite: Progettazione, Direzione Lavori, Liquidazioni, parete chiodata 
- Consolidamento fondazioni palazzina a Giubiasco - Consolidamento fondazioni palazzina a Giubiasco - Settore: Opere speciali di geotecnica - Categoria: Iniezioni di consolidamento con resine sintetiche - Luogo: Giubiasco (CH) - Anno: 2002-2006 - Ingegnere: Dr. Antonio Paronesso formalmente a Passera & Pedretti SA - Prestazioni eseguite: Perizia sulle cause della rotazione rigida subita dai corpi di fabbrica a seguito repentino innalzamento della falda. Progettazione, Direzione Lavori, Liquidazioni, interventi di consolidamento del terreno di fondazione mediante iniezione di resine sintetiche 
 
  
 






















































